Box / posti auto in vendita

Francavilla Al Mare, Via Adriatica Sud - Francavilla Al Mare Centro Sud
€ 109.000
Prezzo aggiornato
1 locale 1 locale
178 Mq 178 Mq
1 bagno 1 bagno

Box / posti auto in vendita

Francavilla Al Mare, Via Adriatica Sud - Francavilla Al Mare Centro Sud

Descrizione annuncio

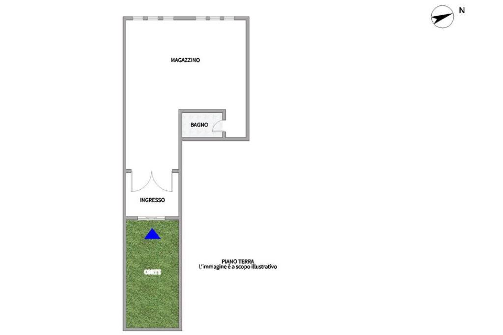
Magazzino di 178 mq con piazzale – Ottimo investimento a reddito.

Contattaci per maggiori informazioni!

In contesto tranquillo e facilmente raggiungibile, proponiamo in vendita un ampio magazzino di circa 178 mq, caratterizzato da spazi interni funzionali e ben distribuiti.
L’immobile si presenta in buone condizioni generali e dispone di un piazzale esterno privato, ideale per operazioni di carico e scarico, parcheggio o area di manovra.

All’interno, la soluzione gode di un’ampia metratura finestrata, che garantisce una buona illuminazione naturale durante tutto il giorno, oltre a un bagno cieco a servizio del locale.
Gli ambienti, ampi e facilmente adattabili, si prestano a diverse destinazioni d’uso: deposito merci, laboratorio artigianale, officina leggera o magazzino logistico.

Ottima anche come soluzione d’investimento, grazie all’elevata richiesta di spazi di questo tipo nella zona: il magazzino può essere locato con una rendita stimata tra l’8% e il 10% annuo, assicurando un ritorno economico interessante e stabile nel tempo.

Se per acquistare la tua nuova casa hai bisogno di vendere il tuo attuale immobile contattaci per una consulenza con valutazione gratuita e senza impegno.

Non perdere l'opportunità di acquistare la tua nuova casa, contattaci per appuntamento di visita.

Seguiteci anche su Facebook Agenzia Tecnocasa Francavilla Centro sud, su Instagram Tecnocasa Francavilla Centro sud, e sul nostro nuovo canale YouTube Tecnocasa Francavilla Centro sud.

Mostra tutto

Nelle vicinanze

Trasporto pubblico Trasporto pubblico
Francavilla
Francavilla
2,6 Km
stazione di Francavilla al Mare
stazione di Francavilla al Mare
2,6 Km
Via Francesco Paolo Tosti
Via Francesco Paolo Tosti
250 m
Via Paolo Tosti 1
Via Paolo Tosti 1
750 m
stazione di Tollo-Canosa Sannita
stazione di Tollo-Canosa Sannita
2,7 Km
Scuole Scuole
scuola elementare foro morto Francavilla
500 m
scuola primaria D’Annunzio
1,4 Km
scuola primaria salita San Franco
2,3 Km
Supermercati Supermercati
MD
440 m
Bar Bar
L'Isola delle Tentazioni
830 m
Club Desirè
1,7 Km
Bar
2,6 Km
Ristoranti Ristoranti
Dal Cavaliere
150 m
Civico 53
440 m
Baramares
720 m
Blind Beach
870 m
Cenacolo
2,0 Km
Mostra tutto

Caratteristiche

Rif.:
61135097
Piano:
1 di 2 (Piano terra)
Box:
1
Posti auto:
3
Arredamento:
Assente
Condizionamento:
Predisposizione impianto
Mostra tutto
Prezzo Prezzo
€ 109.000
Rata mutuo Rata mutuo
€ 514 / mese
Spese annue Spese annue
€ 100
Proponi il tuo prezzoProponi il tuo prezzo

Classe Energetica

G
G
G
G
G
G
G
G
G
EP globale non rinnovabile:
160.00 kW h/m² anno
EP globale rinnovabile:
3.20 kW h/m² anno
EP invernale del fabbricato:
EP estiva del fabbricato:
Anno di costruzione:
1960
Riscaldamento:
Autonomo
Tipo impianto:
A radiatori
Tipo alimentazione:
Metano

Prezzo ridotto di €1 (6%%)

Ti interessa visionare l'immobile?

Fissa un appuntamento  Fissa un appuntamento

Richiedi informazioni

Clicca su Leggi per aprire l'informativa
* Questi campi sono obbligatori

Calcola il tuo mutuo

Semplice e senza impegno
Anticipo

( % )
Mutuo

( % )

pochi semplici passi

inserisci i tuoi dati
Questionario completato
Grazie per aver richiesto un appuntamento senza impegno con un nostro Consulente del Credito e Assicurativo.

Hai inserito correttamente tutti i dati necessari e a breve riceverai una e-mail con un link da convalidare per inviare i tuoi dati.
Affiliato
Immobiliare Francavilla 2 Srl
Viale Nettuno, 131 66023 Francavilla Al Mare (CH)

Il nostro staff


  • Emanuele Pelagatti
    Affiliato

  • Cesare Fagnani
    Affiliato
Viale Nettuno, 131 66023 Francavilla Al Mare (CH)
Zona: Francavilla al Mare Centro Sud
Mostra su mappa
Orari: Lunedì: 09:00 - 13:00, 15:00 - 19:30 Martedì: 09:00 - 13:00, 15:00 - 19:30 Mercoledì: 09:00 - 13:00, 15:00 - 19:30 Giovedì: 09:00 - 13:00, 15:00 - 19:30 Venerdì: 09:00 - 13:00, 15:00 - 19:30 Sabato: 09:00 - 13:00, 15:00 - 18:00 Domenica: Chiuso
Affiliato
Immobiliare Francavilla 2 Srl
Viale Nettuno, 131 66023 Francavilla Al Mare (CH)

2026 Tecnocasa Franchising S.p.A. - P. IVA 08365160152 - Via Monte Bianco 60/A 20089 Rozzano (MI). Ogni agenzia ha un proprio titolare ed è autonoma. Privacy policy | Policy utilizzo | Cookie policy